不幸な幼年期パズル(Unhappy Childhood Puzzle)    2023.11.11

 このパズルは、スローカムとボタマンズの『悪魔のパズル』(芦ヶ原伸之訳)に出ていたもので、1983年にSrewart T.Coffinが作ったパズルである。5つの立方体を組み合わせたピースを5×5の2段の箱に収めるというものである。単に収めるだけならば19264通りの解があるそうだが、市松模様の解はたった一通りしかないそうだ。
 「東急ハンズ」に15mmの立方体木材が50個入ったセット(ヒノキ15角サイコロ50入:396円)とそれとは異なる木材で作られた36個入りのセット(コロコロ15×15×15 36入:220円)¥が販売されていたので、これを使って各キューブを貼り合わせて作ることにした。材料の色が異なるので、特に塗装することはしなかった。製作にあたって注意することは、立方体の大きさが微妙に異なるので、なるべく同じ寸法のものをセレクトして使用することである。それでも合わないときは、ヤスリで削って合わせる。

図1 製作の参考にした本

図2 製作したピース

 材料を図5、図6の形に接着するだけなので、特に難しいところはない。ピースはすべて5つの立方体から成る。色が異なるものはその通りに組み合わせないと、正解が得られなくなるので注意のこと。


図3 ピースA~E


図4 ピースF~J

 製作したピースを以下に示す。

図5 ピースA~E

図6 ピースF~J


 ピースを収めるケースは5mm厚のアガチス材で作った。底板は4mm厚のベニヤである。図面を以下に示す。

図7  箱に収めた状態

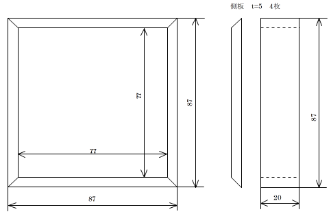
 15mmのキューブで作ったので、理想では75mm角の入れ物でよいはずだが、やはりキューブの寸法にバラツキがあり、内径を77mmとした。側板は図8を参照されたい。底板はベニヤなどを87×87の正方形に切り取って使用する。

図8 箱の図面

パズルの正解は、参考にした本にあるので、ここには書かない。

【参考】
『悪魔のパズル』J.Slocum,J.Botermans、芦ヶ原伸之訳、日経サイエンス、1995.12

<ものづくりのページに戻る>

<HOMEに戻る>